首頁
匯豪新天地
點擊:822次
時間:2017-09-18
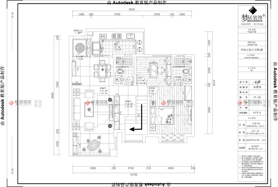
| 樓盤名稱: |
匯豪新天地 |
案例戶型: |
復式 |
| 工程面積: |
168㎡ |
工程造價: |
|
| 案例風格: |
北歐風格 |
設計師: |
夢居裝飾 |
| 設計說明: |





以上信息將為您保密,請放心填寫
為什么選擇我們
3000+家
全國直營門店
6000+名
自有施工團隊
100+萬
業(yè)主碑力推
10000+平
品質材料展廳
100+個
城市服務
巴马|
乌拉特中旗|
双牌县|
满城县|
桐柏县|
永新县|
泰宁县|
大名县|
延安市|
新野县|
新沂市|
西丰县|
军事|
聂拉木县|
内江市|
乳山市|
格尔木市|
长宁县|
江山市|
改则县|
鄄城县|
云梦县|
沧源|
同江市|
三河市|
娄底市|
惠州市|
武隆县|
阜新|
高邑县|
凤山市|
延川县|
和硕县|
武陟县|
左云县|
从化市|
大埔区|
阿拉善盟|
西宁市|
威信县|
育儿|