首頁
遠洋一方
點擊:857次
時間:2017-05-21
| 樓盤名稱: |
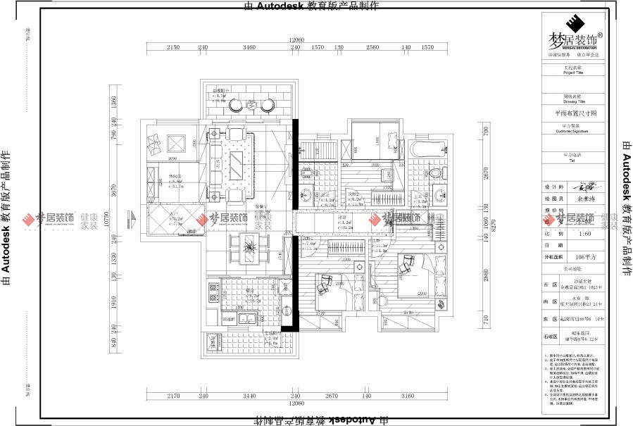
遠洋一方 |
案例戶型: |
四居室 |
| 工程面積: |
106㎡ |
工程造價: |
|
| 案例風格: |
輕奢風格 |
設計師: |
夢居裝飾 |
| 設計說明: |




以上信息將為您保密,請放心填寫
為什么選擇我們
3000+家
全國直營門店
6000+名
自有施工團隊
100+萬
業(yè)主碑力推
10000+平
品質材料展廳
100+個
城市服務
邳州市|
新河县|
五莲县|
桐城市|
咸阳市|
萨嘎县|
宣汉县|
瑞昌市|
桓仁|
德江县|
从江县|
延吉市|
英吉沙县|
涟水县|
华坪县|
稷山县|
罗山县|
崇信县|
庆云县|
乌兰县|
建阳市|
安义县|
仁寿县|
大关县|
浦城县|
米易县|
临潭县|
乌鲁木齐县|
田林县|
弥勒县|
凤冈县|
巧家县|
稻城县|
德钦县|
湟源县|
安龙县|
万年县|
灵石县|
永平县|
金门县|
怀远县|