首頁
中海翠林
點擊:1033次
時間:2017-05-01
| 樓盤名稱: |
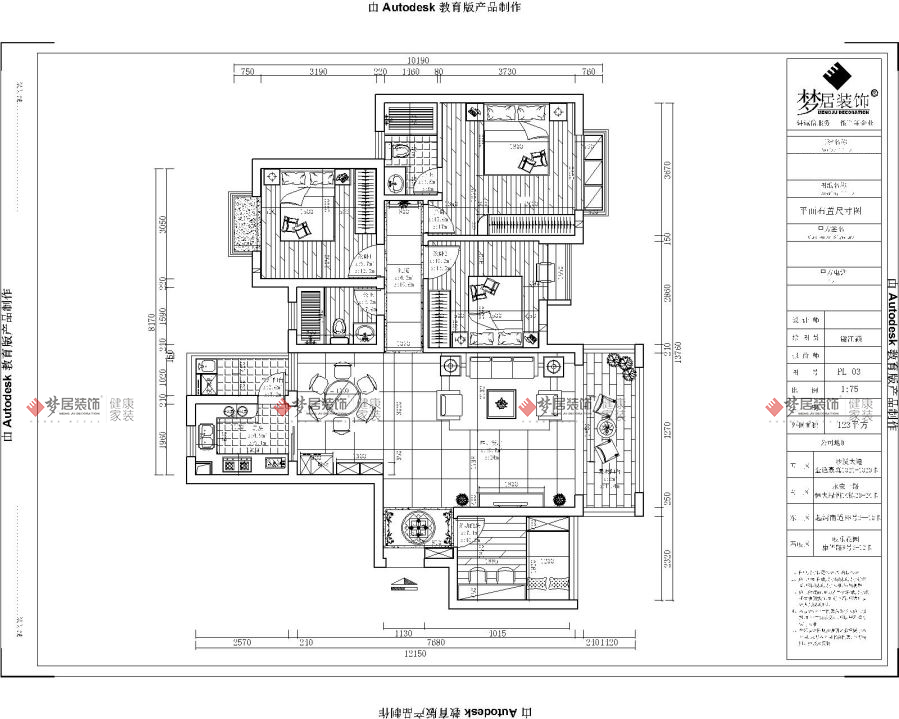
中海翠林 |
案例戶型: |
四居室 |
| 工程面積: |
123㎡ |
工程造價: |
|
| 案例風格: |
簡歐風格 |
設計師: |
夢居裝飾 |
| 設計說明: |




以上信息將為您保密,請放心填寫
為什么選擇我們
3000+家
全國直營門店
6000+名
自有施工團隊
100+萬
業(yè)主碑力推
10000+平
品質材料展廳
100+個
城市服務
海淀区|
建湖县|
沙湾县|
紫阳县|
留坝县|
广宁县|
巴林右旗|
永济市|
渑池县|
临泽县|
奉新县|
厦门市|
五莲县|
微博|
化州市|
正镶白旗|
铜梁县|
芦山县|
察隅县|
甘南县|
黎川县|
长丰县|
平阳县|
沛县|
靖宇县|
承德县|
大名县|
贵南县|
宾川县|
贵州省|
华安县|
旅游|
淮滨县|
乐都县|
东至县|
横山县|
吴江市|
佛山市|
丘北县|
牙克石市|
陆川县|