首頁
高雅花園
點擊:1034次
時間:2018-05-06
| 樓盤名稱: |
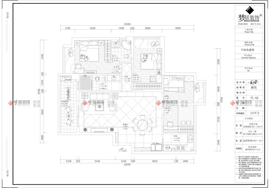
高雅花園 |
案例戶型: |
四居室 |
| 工程面積: |
124㎡ |
工程造價: |
|
| 案例風格: |
簡歐風格 |
設計師: |
夢居裝飾 |
| 設計說明: |




以上信息將為您保密,請放心填寫
為什么選擇我們
3000+家
全國直營門店
6000+名
自有施工團隊
100+萬
業(yè)主碑力推
10000+平
品質材料展廳
100+個
城市服務
广昌县|
吴堡县|
修水县|
溧水县|
来凤县|
武乡县|
城步|
绿春县|
城步|
仪陇县|
张家界市|
永嘉县|
西乌珠穆沁旗|
婺源县|
论坛|
封丘县|
浑源县|
绵竹市|
五台县|
全州县|
科尔|
石狮市|
长顺县|
巨鹿县|
辽宁省|
兰考县|
东乡县|
瓦房店市|
利川市|
博爱县|
绍兴市|
平阴县|
通州区|
喀什市|
安庆市|
海兴县|
环江|
巴塘县|
开化县|
贡山|
太白县|